RECONVERSION DE L'ANCIENNE CHAPELLE DES URSULINES EN ARTOTHEQUE

situation ancienne chapelle des ursulines rue Claude de Bettignies, 3 7000 Mons programme Restauration / Stockage / Consultation d’oeuvres d’art. maitre d’ouvrage ville de Mons architectes Gigogne-l’Escaut architectures
[...]
stabilité				JZH & Partners
tech. spéciales		Axis engineering
entreprise générale		LIXON s.a.
phase 				chantier
superficie brute		6.722m²

La Chapelle de l’ancien Couvent des Ursulines est un exemple remarquable d’architecture classique datant du début du XVIII° siècle. Les façades et la toiture sont aujourd’hui classées. L’intérieur, irrémédiablement privé de son espace original et de son usage initial, offre cependant un potentiel d’utilisation qu’une réaffectation adéquate peut mettre à profit, dans le respect de la mémoire du lieu. L’ensemble de la bâtisse occupe un lieu désormais stratégique dans la Ville de Mons, à proximité de la gare et de Sainte-Waudru. La réaffectation de la chapelle ne niera pas son passé, marqué par des événements forts. Le projet met en scène le croisement de différentes époques et la mécanique de son nouveau fonctionnement : une énorme machine accueillant une précieuse réserve, à la fois matérielle et virtuelle. Le programme de l’Artothèque paraît calqué sur l’édifice qui l’accueille, comme une fiction écrite pour un unique comédien. Donner une visibilité au stockage des œuvres d’art est un enjeu étonnant, auquel personne n’aurait sans doute pensé si la présence de cet édifice à l’histoire tourmentée ne rencontrait d’une part le besoin pressant d’une institution, et l’opportunité du projet Mons 2015.
[...]
La présence de planchers en béton, destructrice d’un monument historique, est ici transformée en opportunité : d’un monument abimé, la chapelle devient un lieu de stockage doté d’une enveloppe à valeur patrimoniale. Encore faut-il qu’une fois la porte franchie, la magie de cette enveloppe ne s’oublie pas d’un coup.

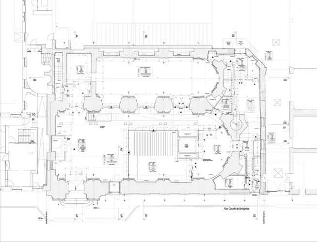
C’est l’enjeu des deux options principales qui conditionnent l’aménagement intérieur : une la faille verticale s’ouvrant sur la hauteur et la longueur de la nef, et la libération visuelle maximale du rez-de-chaussée. Ces ouvertures permettent d’appréhender les trois dimensions du volume global intérieur originel de la chapelle.

L’ouverture visuelle du rez-de-chaussée révèle le fonctionnement de l’institution : l’espace de conservation des œuvres de grands formats avec son mécanisme de stockage, constituent un décor pour l’accueil du public. Seul les séparent une paroi de verre sécurisé inviolable. Ici encore, c’est la dialectique du mystère et de la révélation qui joue.

La faille verticale, quant à elle, reçoit un escalier monumental que l’on voit pénétrer les profondeurs de l’édifice, frôlant les anciens reliefs muraux redécouverts. Cette faille en dit autant sur l’édifice ancien que sur la fonction nouvelle, révélant autant le volume originel que la succession des étages fermés, contenant les milliers d’objets dont un échantillon a été aperçu au rez-de-chaussée.

Autour de ces deux gestes architecturaux, le programme se structure et se subdivise en 4 entités dont une est dédiée au public et comprend l’accueil et une salle d’exposition au rez de chaussée ainsi qu’un centre de documentation au 1er étage, les autres entités étant dédiées au personnel et aux espaces de stockage, sur 6 étages, de restauration, de gestion et de logistique. Une fois à l’intérieur de la chapelle, le public est accueilli dans le hall par une scénographie qui met en confrontation des technologies numériques de consultation et des vitrines contenant des “vraies’’ œuvres.

Le comptoir d’accueil est intégré dans un mobilier équipé également de vitrines, de bornes de consultation et de banquettes qui permettront de regarder des projections sur la vitrine qui sépare l’accueil de l’espace de réserve.

La lumière qui provient de la faille invite le visiteur, dès l’accueil, à découvrir l’espace de la nef occupée. Dans un moment d’intensité dramaturgique, le visiteur peut enfin apercevoir toute la verticalité du bâtiment et les vestiges des anciens décors.

Dans la faille, une résille métallique soutient tous les plateaux. Elle s’insère dans le rythme de l’architecture ancienne tout en gardant un contraste : son dessin léger s’oppose à la massivité de l’ancien. Sa légère inclinaison renforce la sensation de verticalité.

Le visiteur peut poursuivre le parcours scénographique. Les salles dans la nef latérale contiennent des dispositifs numériques « d’immersion » permettant la découverte d’œuvres virtuelles, de parcourir des espaces d’exposition, de visiter d’autres musées, etc.

Au premier étage de la nef latérale, le centre de documentation, ample espace dont l’ancien décor est conservé, constitue un espace public plus réservé, dédié aux chercheurs.

Les grandes ouvertures existantes donnent une vue vers la faille verticale dans la grande nef et établissent une communication visuelle avec les espaces d’accueil du public.

Les œuvres arrivent par l’arrière du bâtiment et sont véhiculées vers les espaces de conservation et de restauration aux étages par un monte-charge, doublé d’un escalier qui épouse l’ancienne abside de la chapelle. Un espace dédié à la conservation préventive, à l’étude de la collection et à la restauration est situé au 1er étage, .au début de la chaine de traitement des œuvres.

Les réserves sont classées par type d’œuvre et occupent 6 niveaux de la grande nef. Il y aura des toiles de différents formats, des sculptures classées par type de matériaux (pierre, bois, matériaux composite), des céramiques, des gravures et des textiles. Chaque niveau est une boite opaque avec sa température et son hygrométrie propre en fonction des types d’œuvre. Au centre des réserves, au niveau des grandes baies se trouve le plateau dédié à la gestion du lieu, visible depuis la faille et en dualité avec les plateaux opaques des réserves.

Les œuvres sont un trésor au cœur de l’édifice, inaccessibles mais dont la présence réelle sacralise le lieu. L’enveloppe de cette châsse urbaine est restaurée dans le scrupuleux respect de son architecture originelle, faite de pierres blanches, briques badigeonnées de rouge et ardoises de schiste. Au travers de la nouvelle vitrerie qui refermera les grandes baies, la nouvelle fonction s’affirmera avec discrétion.

 
http://ccc.dddd.www.gigogne.be/files/gimgs/th-33_faille.jpg



 
http://ccc.dddd.www.gigogne.be/files/gimgs/th-33_!cid_5aa745c0-85b0-4e29-af1e-6d27d2d657b7.jpg

© l'escaut / François Lichtle

 
http://ccc.dddd.www.gigogne.be/files/gimgs/th-33_P02 copie.jpg
 
 
http://ccc.dddd.www.gigogne.be/files/gimgs/th-33_C06.jpg
 
 
http://ccc.dddd.www.gigogne.be/files/gimgs/th-33_panorama.jpg
 
 
http://ccc.dddd.www.gigogne.be/files/gimgs/th-33_portail 3D.jpg
 
 
http://ccc.dddd.www.gigogne.be/files/gimgs/th-33_clocheton.jpg
 
 
http://ccc.dddd.www.gigogne.be/files/gimgs/th-33_entree2.jpg
 
 
http://ccc.dddd.www.gigogne.be/files/gimgs/th-33_entrée1.jpg
 
 
http://ccc.dddd.www.gigogne.be/files/gimgs/th-33_scéno.jpg
 
 
http://ccc.dddd.www.gigogne.be/files/gimgs/th-33_petite photo 05 copie.jpg
 
 
http://ccc.dddd.www.gigogne.be/files/gimgs/th-33_croquis.jpg