CONSTRUCTION D’UNE MAISON DE JEUNES, DE TROIS STUDIOS SUPERVISÉS ET DE QUATRE LOGEMENTS DE GRANDE TAILLE

situation			rue de l’Eclusier Cogge, 29-31
				à 1000 Bruxelles
programme 		Une maison de jeunes, 
				trois studios supervisés,
				quatre logements de grande taille.
maitre d’ouvrage 	Contrat de quartier "Masui"
architectes		Gigogne-VERS.A association momentanée
[...]

stabilité			bureau d'étude Matriche
tech. spéciales	MK eningeering
phase			concours 2012 / projet lauréat
superficie brute	1.465 m²
budget			2.210.000 €HTVA

Le nouvel immeuble présenté dans notre offre vient renforcer l’option d’une nouvelle identité urbaine conférée à l’ancien tronçon de la Senne. La luminosité des matériaux des façades de la nouvelle maison des jeunes implantée dans le parc longiligne y ponctue un lieu nouveau et crée un repère clair et très visible malgré la relative modestie de son gabarit.

Le programme de la maison des jeunes et des logements est mis en place dans un bâtiment à la volumétrie à la fois simple et expressive de son contenu. La conception du plan des logements et de l’équipement public ordonne les différentes parties en une géométrie orthogonale et régulière, en vue d’une simplicité architectonique et d’une évidence constructive. Cette simplicité se traduit directement dans le fonctionnement du bâtiment, dont les circulations permettent une utilisation intuitive mais flexible, et dont les espaces conjuguent harmonieusement leurs spécificités.

[...]
La maison des jeunes.
La maison des jeunes se développe sur deux niveaux le long du parc de la Senne, et s’organise autour d’un patio qui crée une séparation entre cet équipement et l’immeuble de logement. Ce patio planté crée en outre une transparence et une respiration dans le hall d’accueil, qui est ainsi abondamment éclairé, et renforce l’insertion de la maison des jeunes dans le parc.

Les logements.
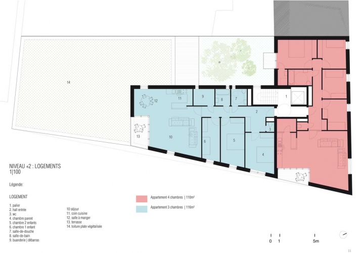
Les étages du bâtiment contenant les logements se raccordent au gabarit de l’immeuble voisin, rue Cogge : alignements de la corniche et de la profondeur du corps de bâtiment. Les trois studios supervisés, placés au premier étage, font effectivement partie de cet immeuble de logement, mais en proximité avec la gérance de la maison des jeunes. Ils profitent tous trois de deux orientations et disposent chacun d’une terrasse en loggia ou d’un balcon. Aux deuxième et troisième étages, les quatre appartements de familles nombreuses disposent tous de trois orientations.
 
http://ccc.dddd.www.gigogne.be/files/gimgs/th-83_38_Eclusier_01AP_A3 121118-3.jpg



 
http://ccc.dddd.www.gigogne.be/files/gimgs/th-83_38_Eclusier_01AP_A3 121118-25.jpg
 
 
http://ccc.dddd.www.gigogne.be/files/gimgs/th-83_38_Eclusier_01AP_A3 121118-26.jpg
 
 
http://ccc.dddd.www.gigogne.be/files/gimgs/th-83_38_Eclusier_01AP_A3 121118-17.jpg
 
 
http://ccc.dddd.www.gigogne.be/files/gimgs/th-83_schémas.jpg
 
 
http://ccc.dddd.www.gigogne.be/files/gimgs/th-83_38_Eclusier_01AP_A3 121118-7.jpg
 
 
http://ccc.dddd.www.gigogne.be/files/gimgs/th-83_38_Eclusier_01AP_A3 121118-12.jpg
 
 
http://ccc.dddd.www.gigogne.be/files/gimgs/th-83_38_Eclusier_01AP_A3 121118-28.jpg
 
 
http://ccc.dddd.www.gigogne.be/files/gimgs/th-83_interieur.jpg
 
 
http://ccc.dddd.www.gigogne.be/files/gimgs/th-83_38_Eclusier_01AP_A3 121118-5.jpg
 
 
http://ccc.dddd.www.gigogne.be/files/gimgs/th-83_38_Eclusier_01AP_A3 121118-11.jpg