CONSTRUCTION D’UNE CRÈCHE ET DE QUATRE LOGEMENTS

situation	           Rue Vandermaelen 8-18 
				   à 1080 Molenbeek Saint Jean
programme 		   une crèche et de quatre logements
maitre d’ouvrage    Commune de Molenbeek Saint Jean
				   Contrat de quartier "cinéma belle-vue"
architectes		   Gigogne-VERS.A association momentanée
[...]

stabilité			   bureau d'étude Matriche
tech. spéciales	   MK eningeering
phase			   concours 2012
superficie brute	   1222 m²
budget			   1.450.700 €HTVA

Le projet s’articule autour du respect de ce qui est et de l’ouverture vers ce qui reste à venir.

Plutôt que de développer une architecture inspirée d’innovations formelles dans l’air du temps mais souvent vaines, nous avons choisi d’élaborer notre proposition dans la mise en place d’un langage parlé de tous, de la crèche aux logements, de la rue à l’allé verte, de l’ouest au sud, permettant de comprendre la mixité du programme et de son contexte.
[...]

L’ossature en béton architectonique combinée aux parois en briques à joints beurrés (affleurant le plan du parement) trouve résonance dans la typologie industrielle qui caractérise le quartier. La technique mise en place est traditionnelle, locale et maîtrisée, à l’épreuve du temps et néanmoins ouverte à l’évolution.
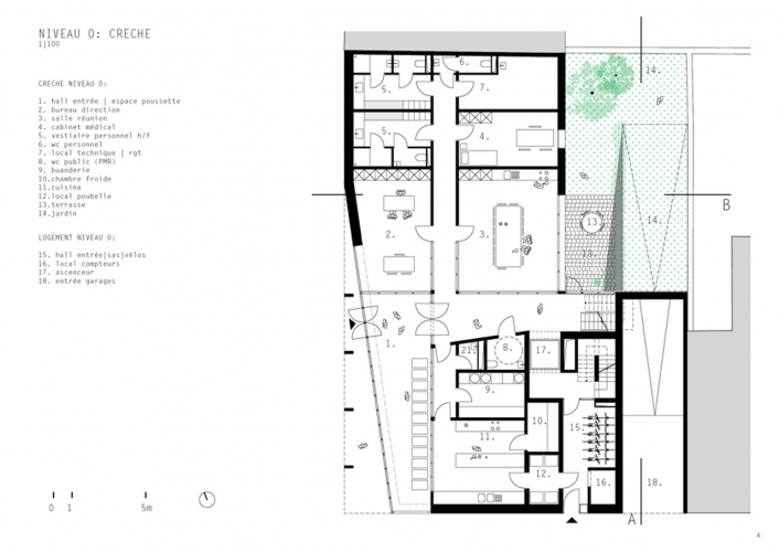
Les plans montrent une organisation très rationnelle et compacte, visant la simplicité constructive autant que la richesse des espaces de vie.

La crèche occupe les deux premiers niveaux du bâtiment. Elle noue le bâtiment à l’espace public mais maintient les enfants au calme par la disposition des séjours à l’étage.
Ces séjours participent à la relation du bâtiment avec l’espace public en se partagent au premier étage une grande terrasse en loggia, orientée à l’ouest sur l’allée verte. Cette terrasse dispose d’un local de rangement directement accessible. Les trois communications entre les deux séjours, par la terrasse, les espaces de soins et de sanitaires et le hall des parents, permettent de partout une surveillance aisée des enfants. La position du sanitaire du personnel entre les deux espaces de soins répond à la même logique de surveillance de tous les instants.

Au deuxième étage, la disposition des appartements crée une alternance de vides et de pleins, traduisant la fonction résidentielle de la partie supérieure de l’immeuble. Le troisième étage s’inscrit strictement dans les gabarits de la rue Vandermaelen, mais s’interrompt sur le bâtiment en front de parc pour laisser s’y déployer une toiture verte dont les découpes permettent d’ensoleiller le patio, la terrasse et la loggia offerts aux logements en façade ouest. Les plans des appartements sont d’une grande clarté et les fonctions se superposent entre les niveaux. La superposition des gaines comme des structures est quasi parfaite, malgré la différence des programmes.
 
http://ccc.dddd.www.gigogne.be/files/gimgs/th-81_2_v7.jpg



 
http://ccc.dddd.www.gigogne.be/files/gimgs/th-81_4_v5.jpg
 
 
http://ccc.dddd.www.gigogne.be/files/gimgs/th-81_r0.jpg
 
 
http://ccc.dddd.www.gigogne.be/files/gimgs/th-81_plans.jpg
 
 
http://ccc.dddd.www.gigogne.be/files/gimgs/th-81_coupe 1.jpg
 
 
http://ccc.dddd.www.gigogne.be/files/gimgs/th-81_5_v4.jpg
 
 
http://ccc.dddd.www.gigogne.be/files/gimgs/th-81_3_v6.jpg
 
 
http://ccc.dddd.www.gigogne.be/files/gimgs/th-81_9_v4.jpg
 
 
http://ccc.dddd.www.gigogne.be/files/gimgs/th-81_7_v4.jpg
 
 
http://ccc.dddd.www.gigogne.be/files/gimgs/th-81_8_v4.jpg