RENOVATION DE LOGEMENTS ET D’UN ESPACE CULTUREL A IXELLES

situation		Rue du Viaduc 118-122 
à 1050 Ixelles programme Logements et activités économiques maitre d’ouvrage Commune d'Ixelles architectes Atelier Gigogne
[...]

stabilité			bureau d'étude Matriche
tech. spéciales	Enesta
conseiller PEB	atelier Eupalinos
phase			concours - 2012
superficie brute	1275 m²
budget			1.004.250 €HTVA

Le projet se déroule dans les bâtiments de ce qui fût "Le Nouveau Théatre de Belgique".
En façade, les trois fonctions (logements, espace culturel arrière, nouvel espace culturel) disposent chacune d’un accès distinct, mais intégré à un dispositif architectural unifiant l’ensemble des entrées. Ce dispositif maintient la double porte ancienne, restaurée, et est complété par un plan en tôle métallique laquée perforée, créant une transparence modulée entre la rue et les fonctions du rez-de-chaussée.
[...]

Le traitement du nouvel espace culturel consistera simplement en l’achèvement de ce qui est réalisé au stade du gros-œuvre.
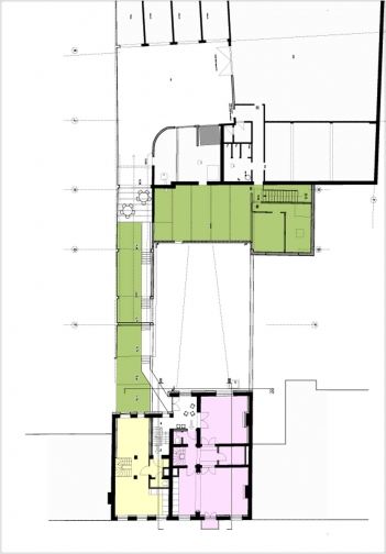
Les étages des deux immeubles, affectés à cinq logements, sont desservis par un nouvel escalier en béton placé dans le volume de l’immeuble 118/120. La disposition des volées de marches permet de réduire son encombrement au minimum, tout en desservant tous les niveaux décalés aux étages des deux immeubles.

Notre proposition d’un atelier d’artiste au cœur du projet de logements tire parti des dimensions exceptionnelles les locaux du 1er étage du n°122 et de l’orientation idéale au nord de la pièce que nous affectons à cette activité.
Outre les complémentarités possibles avec les fonctions culturelles, la présence de cet atelier d’artiste ajoute de l’identité au bâtiment et aux logements regroupés à cette adresse.

Au cœur de l’espace de circulation, au premier étage de l’escalier commun, un des paliers se développe largement en un petit espace de rencontre et de relations sociales. L’appartement accessible par ce palier élargi est celui qui comporte le grand local que nous affectons à un atelier d’artiste ou, à défaut, à toute autre activité professionnelle pouvant profiter de cette entrée séparée depuis ce palier convivial.

En façade avant, excepté le rez-de-chaussée qui recevra un nouveau traitement décrit au début du présent rapport, il s’agira de restauration de l’état initial, avec restauration des corniches ouvragées en bois, des modénatures d’encadrement des baies, des cadres et des bandeaux, et de la double porte d’entrée du n°122. Les deux baies au rez-de-chaussée du n°122 seront rouvertes afin de restituer l’intégrité de cette façade.
 



http://ccc.dddd.www.gigogne.be/files/gimgs/th-79_DSCF4521c.jpg
 
 
http://ccc.dddd.www.gigogne.be/files/gimgs/th-79_pers rue copie3.jpg
 
 
http://ccc.dddd.www.gigogne.be/files/gimgs/th-79_VIADUC 121003 A4 R0.jpg
 
 
http://ccc.dddd.www.gigogne.be/files/gimgs/th-79_VIADUC 121003 A4 R+1.jpg
 
 
http://ccc.dddd.www.gigogne.be/files/gimgs/th-79_VIADUC 121003 A4 R+2.jpg
 
 
http://ccc.dddd.www.gigogne.be/files/gimgs/th-79_VIADUC 121003 A4 COUPE BB.jpg
 
 
http://ccc.dddd.www.gigogne.be/files/gimgs/th-79_pers arrière copie3.jpg