ALLÉE VERTE / CHAUSSÉE D'ANVERS

situation                        angle de l'Allée Verte 
                                        et de la chaussée d'Anvers
                                        sur le square Jules de Trooz
                                        à 1000 Bruxelles
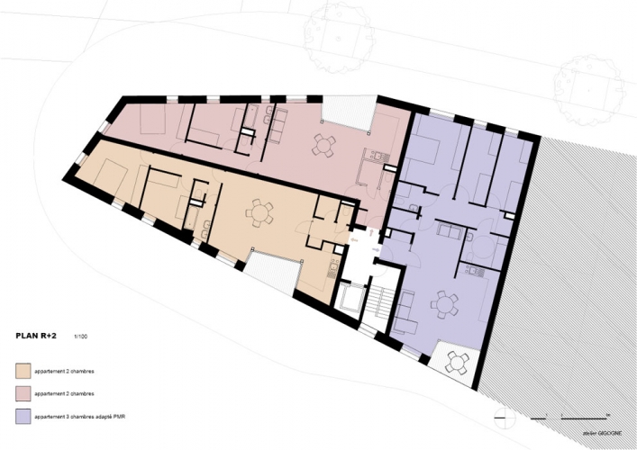
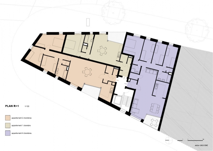
programme                   construction d'un immeuble passif
                                        de 9 logements avec parking
                                        et d'une surface commerciale
maitre d’ouvrage          Régie Foncière de la Ville de Bruxelles
architectes                     Atelier Gigogne 
[...]
stabilité                            Bureau d'études Matriche
tech. spéciales               Axis engineering
conseil                            PEB Atelier Eupalinos
phase                              concours / 2013
superficie brute.            1.756 m²
budget1                           2.210.000 € HTVA

Le tronçon de la chaussée d’Anvers entre la rue Masui et le square de Trooz, recèle un potentiel urbain attractif à l’échelle du quartier, qui devrait être mieux exploité et mis en valeur.
Or, dans l’état actuel, cette chaussée pourtant vivante n’a quasi aucune présence sur le square Jules de Trooz, l’ouverture de l’Allée Verte et la perspective de l’avenue de la Reine y captant tous les regards. Vus depuis le pont de l’avenue de la reine, les deux pointes d’îlots qui encadrent la chaussée d’Anvers semblent soudées, et ne témoignant pas de la présence de la rue, ni du quartier qu’elle draine. En outre, les aménagements actuels au sol du square Jules de Trooz sont peu propices à créer en cet endroit un lieu urbain.

Notre projet se saisit de l’opportunité d’agir en ce lieu, pour requalifier les différents espaces s’y trouvant.
Le bâtiment que nous proposons constitue un élément fondamental dans la stratégie de requalification de cette entrée de quartier, notamment en clarifiant les statuts des espaces urbains.
[...]

Tout d’abord, la volumétrie simple du gabarit privilégie les intentions urbaines avant toute autre velléité architecturale. Sa forme s’affinant par un pli opéré dans la chaussée d’Anvers amèné une façade d’un gabarit étroit sur le square, qui répond avec évidence à celle de l’immeuble d’angle Anvers/Reine Ainsi, les deux immeubles cadreront clairement l’entrée de la chaussée d’Anvers. Les terrasses des logements sont prévues en loggias, afin de ne pas interférer avec la simplicité signifiante de cette volumétrie.

Ensuite, ce léger pli de la façade chaussée d’Anvers s’inscrit en continuité avec l’inflexion (entre les n°s 408 et 410) qui caractérise cette partie de la chaussée, tout en l’ouvrant un peu plus vers le square. Le retrait du rez-de-chaussée de l’immeuble du côté de la chaussée d’Anvers ainsi que celui sous le porte à faux de l’extrémité nord du bâtiment qui s’étire vers le square, élargissent le trottoir, renforcent le caractère public du commerce au rez-de-chaussée, et participent à la requalification de l’espace au sol dont nos parlons ci-avant.

Enfin, le parement des façades distingue clairement l’appartenance de l’immeuble aux deux espaces publics majeurs qui l‘enserrent. Les façades de la chaussée d’Anvers ainsi que celle qui fait face au square, sont traités en enduit blanc et lisse, en continuité avec la tonalité majoritaire des façades de la chaussée. Les châssis et les garde-corps de ces façades sont laqués blanc.

Mais, de manière nette et franche, le matériau change sur l’arrête aigüe, à la rencontre avec le plan de façade sur l’Allée Verte. Là le parement est en briques rouge ou grise, donnant une identité différente à cette orientation, indépendamment de la hiérarchie des deux voiries.
Cette simplicité volumétrique voulue pour la lisibilité urbaine, est cependant travaillée aux raccords avec les bâtiments mitoyens, de manière à respecter le RRU, ce qui permet de multiplier les orientations du logement mitoyen au dernier niveau.
Le bâtiment s’affirme donc comme la continuité du ruban bâti, se soulevant en arrivant sur le square Jules de Trooz pour créer une surface commerciale sur celui-ci.

 
http://ccc.dddd.www.gigogne.be/files/gimgs/th-92_couverture.jpg



 
http://ccc.dddd.www.gigogne.be/files/gimgs/th-92_square1.jpg
 
 
http://ccc.dddd.www.gigogne.be/files/gimgs/th-92_05-chaussee-norm.jpg
 
 
http://ccc.dddd.www.gigogne.be/files/gimgs/th-92_anvers03.jpg
 
 
http://ccc.dddd.www.gigogne.be/files/gimgs/th-92_hall-FINAL.jpg
 
 
http://ccc.dddd.www.gigogne.be/files/gimgs/th-92_implantation1.jpg
 
 
http://ccc.dddd.www.gigogne.be/files/gimgs/th-92_r0+1.jpg
 
 
http://ccc.dddd.www.gigogne.be/files/gimgs/th-92_r+3.jpg
 
 
http://ccc.dddd.www.gigogne.be/files/gimgs/th-92_r+2.jpg
 
 
http://ccc.dddd.www.gigogne.be/files/gimgs/th-92_r+1.jpg
 
 
http://ccc.dddd.www.gigogne.be/files/gimgs/th-92_facades.jpg
 
 
http://ccc.dddd.www.gigogne.be/files/gimgs/th-92_coupe_v2.jpg