3 LOGEMENTS RUE GENDEBIEN

situation				rue gendebien, 24
					1030 Schaerbeek
programme			3 logements
maitre d’ouvrage 		Commune de Schaerbeek
architectes 			Gigogne-Eupalinos association momentanée
					Pierre Van Assche Nicolas Goubau
[...]
stabilité				bureau d'étude Matriche
tech. spéciales		Axis engineering
phase 				chantier en cours
superficie brute		352m²
montant des travaux	503.500 € HTVA

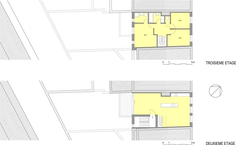
Construction de 2 duplex 3 chambres sur une parcelle étroite enclavée près d’un angle dans un îlot densément bâti. Proposition de pousser les performances énergétiques vers le standard passif, au delà de la demande initiale afin d’exploiter le potentiel offert par la compacité du projet et pour affranchir les futurs utilisateurs de la charge énergétique. Lumière et qualités spatiales.
La recherche de lumière sur la parcelle enclavée et d’un espace extérieur vert dans le quartier densément bâti ont mené à des appartements traversants en duplex, sur un rez de chaussée avec passage commun vers l’intérieur d’îlot avec jardin er vaste abri à bicyclettes. La simplicité constructive permet de limiter l’usage de béton armé au bénéfice de structures légères en bois pour amélirorer le bilan environnemental des matérieux mis en oeuvre.
 
http://ccc.dddd.www.gigogne.be/files/gimgs/th-51_gendebien 1 copie.jpg



 
http://ccc.dddd.www.gigogne.be/files/gimgs/th-51_gendebien 2.jpg
 
 
http://ccc.dddd.www.gigogne.be/files/gimgs/th-51_A044 GEN esquisse 110520 facades.jpg
 
 
http://ccc.dddd.www.gigogne.be/files/gimgs/th-51_A044 GEN esquisse 110520 rez et +1.jpg
 
 
http://ccc.dddd.www.gigogne.be/files/gimgs/th-51_A044 GEN esquisse 110520 +2 & +3.jpg
 
 
http://ccc.dddd.www.gigogne.be/files/gimgs/th-51_A044 GEN esquisse 110520 coupe A.jpg