RÉHABILITATION DE L’IMMEUBLE-TOUR DE LOGEMENTS SOCIAUX «POTIERS II»

situation rue des Potiers à 1000 Bruxelles programme Réhabilitation de 66 logements, espaces collectifs et commerces attenants dans une vision écologique et durable maitre d’ouvrage ville de Bruxelles architectes Atelier Gigogne
[...]
stabilité				Bureau d'études Matriche
tech. spéciales		Axis engineering
conseil PEB			Enesta
phase 				concours / 2012 / 2ème prix
superficie brute		8.765,90 m²

Notre proposition d’intervention se base sur une philosophie d’intervention rationnelle, en minimisant au plus les démolitions, tout en étant attentive et généreuse à l’habitabilité. Par une destruction minimale et réfléchie de certaines parois, on parvient à redonner des qualités, de l’air aux logements, à rendre des séjours traversants.

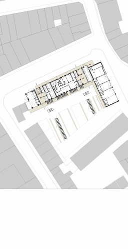
Nous avons cherché à travailler les façades comme des épaisseurs entre l’espace public, la ville, et l’espace privé, celui de l’habitat, ceci tout en manifestant l’intégration du bâtiment dans son contexte. La façade nord-ouest participe à la rue du Vautour, alors que la façade sud devient une façade côté jardin, offrant des terrasses aux logements 2-3-4 chambres. Ces deux façades offrent dans leur épaisseur des seuils vis à vis de l’espace public, conférant ainsi une dimension d’intimité dans les logements, trop souvent absente dans les grands ensembles.
[...]
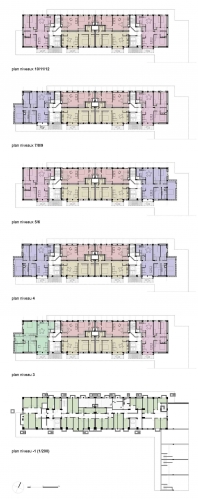
Un travail profond sur la compréhension de la structure du bâtiment nous a conduits à opter pour une politique rationnelle d’intervention : d’une manière générale, la réhabilitation des appartements se fait sans aucune intervention sur la structure. Excepté en ce qui concerne les ascenseurs, aucune poutre ni aucun autre élément en béton armé n’est retiré ou transformé. Seule les gaines voisines des escaliers sont éventuellement agrandies, alors que la gaine des cheminées est récupérée au profit de la surface des logements, grâce à la reconversion en gaine principale de « l’aéra » central. Autant que possible, le maximum du cloisonnement existant est réutilisé : l’enlèvement minutieux de certaines parois suffit à créer des espaces plus ouverts et des séjours traversants.

Les extensions des pignons, indispensables pour le programme des appartements adaptés aux PMR ou comptant quatre chambres, se répartissent en 3 fois trois chambres superposées réalisées en ossature de bois, localisées aux endroits des façades non grevées de poutres renversées. Afin d’alléger le poids sur les fondations, un de ces groupements de trois chambres est soutenu par la paroi mitoyenne à construire du côté de la rue de la Verdure. Les deux autres groupements sont ancrés au droit des nœuds de colonnes et poutres maîtresses.

Les extensions des séjours et terrasses prévues en façade sud-est métamorphosent la qualité des logements autant qu’elles transfigurent l’image de l’immeuble. Elles apportent espace et lumière aux séjours et, se prolongeant par de généreux balcons, elles cassent l’impression de confinement actuel des appartements.
Elles ont donc fait l’objet d’une attention particulière de notre part. De plus, elles pourraient constituer le prototype d’autres extensions de surfaces que nous n’avons pas prévu en solution de base, mais dont nous avons étudié la faisabilité.

Les poutres inversées sont franchies par une estrade qui étend l’espace vital des pièces et servent de palier d’accès aux terrasses. Ces extensions sont ancrées aux nœuds des poutres et colonnes en façades, par des parois en bois renforcées de tirants métalliques, formant séparations entre les locaux étendus. Une poutre transversale en bois lamellé collé, ancrées à ces parois, supporte les consoles en bois massif qui portent l’estrade, les terrasses et leurs garde-corps. Des montants relieraient les balcons superposées de manière à raidir les garde-corps et à répartir les charges mobiles sur un plus grand nombre de consoles.

 
http://ccc.dddd.www.gigogne.be/files/gimgs/th-84_A053 LAYOUT A1_lourd0BIS.jpg



 
http://ccc.dddd.www.gigogne.be/files/gimgs/th-84_poelaert2.jpg
 
 
http://ccc.dddd.www.gigogne.be/files/gimgs/th-84_A053 LAYOUT A1_imp5002.jpg
 
 
http://ccc.dddd.www.gigogne.be/files/gimgs/th-84_PLANS 100.jpg
 
 
http://ccc.dddd.www.gigogne.be/files/gimgs/th-84_plans_v3.jpg
 
 
http://ccc.dddd.www.gigogne.be/files/gimgs/th-84_vautour.jpg
 
 
http://ccc.dddd.www.gigogne.be/files/gimgs/th-84_anneessens .jpg
 
 
http://ccc.dddd.www.gigogne.be/files/gimgs/th-84_sud.jpg
 
 
http://ccc.dddd.www.gigogne.be/files/gimgs/th-84_A053 LAYOUT A1_lourd9.jpg
 
 
http://ccc.dddd.www.gigogne.be/files/gimgs/th-84_INT FULL.jpg
 
 
http://ccc.dddd.www.gigogne.be/files/gimgs/th-84_AXONO APPT.jpg
 
 
http://ccc.dddd.www.gigogne.be/files/gimgs/th-84_A053 PLANS & ELEVATIONS-121215 A0 ISO.jpg
 
 
http://ccc.dddd.www.gigogne.be/files/gimgs/th-84_final_cour.jpg
 
 
http://ccc.dddd.www.gigogne.be/files/gimgs/th-84_terrasses_final.jpg