RESTAURATION ET REHABILITATION DE L’ANCIEN HOPITAL SAINT-JULIEN A BOUSSOIT

situation				rue des Buxiniens, 4-6
					7110 La Louvière 
programme			Restauration des bâtiments 
					et d’une peinture murale historique
					Création de 5 logements 
					Aménagement des abords
maitre d’ouvrage		Fonds du Logement des Familles 
					Nombreuses de Wallonie
architectes			Atelier Gigogne  
					Pierre Van Assche & Catherine Titeux	
[...]
stabilité				JZH & Partners
tech. spéciales		Axis engineering
phase				chantier
superficie brute		1179 m²

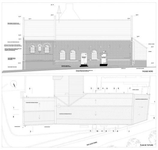
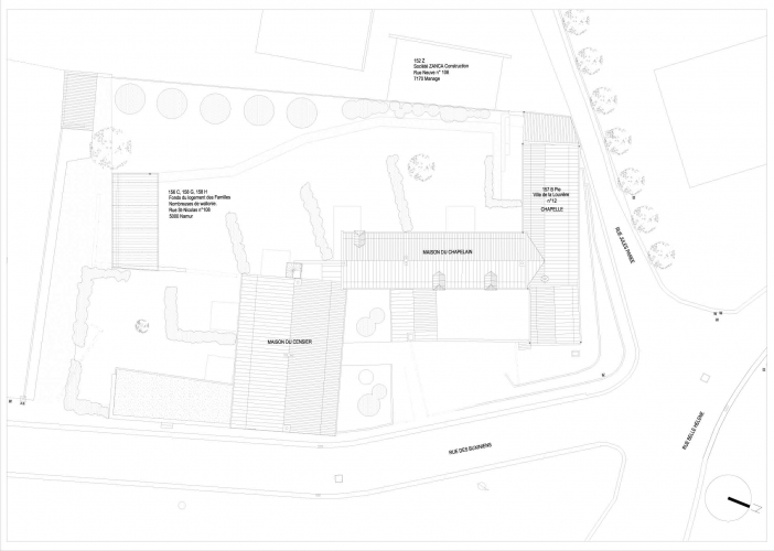
La maison du Censier et la maison du Chapelain, deux des édificices du site de l’ancien hôpital Saint Julien à Boussoit, font l’objet d’un projet de restauration et de réaffectation en cinq logements.

L’ensemble du site est classé tant pour ses qualités architecturales que pour les éléments remarquables qu’ils contient, comme la chapelle et la maison du Censier dont une voûte est ornée d’une fresque du 17e siècle qui sera restaurée. Implantés sur une ancienne fondation hospitalière datant de la fin du 13e siècle, les trois bâtiments en briques à chaînes de pierre forment un groupe particulièrement harmonieux, disposé entre une cour ouverte et un jardin arboré.

Notre projet tient compte de la grande stratification historique du site et insère le programe dans le plus grand respect de la lisibilité archéologique du bâti. La qualité des logements tient en premier lieu à la beauté des volumes, parfois voûtés, mais aussi à la possibilité d’accéder à un jardin privatif.

 
http://ccc.dddd.www.gigogne.be/files/gimgs/th-54_test1_v2.jpg



 
http://ccc.dddd.www.gigogne.be/files/gimgs/th-54_158 BOUCH DCE 110516 PRO P00_v2.jpg
 
 
http://ccc.dddd.www.gigogne.be/files/gimgs/th-54_158 BOUCH DCE 110516 PRO P01_v2.jpg
 
 
http://ccc.dddd.www.gigogne.be/files/gimgs/th-54_158 BOUCH DCE 110516 PRO P02_v2.jpg
 
 
http://ccc.dddd.www.gigogne.be/files/gimgs/th-54_dessin jardin niv de gris copie_v2.jpg
 
 
http://ccc.dddd.www.gigogne.be/files/gimgs/th-54_IMG_2559 copie_v2.jpg